Ancien corps de ferme, en pierre, avec grange
Caractéristiques
Descriptif
Venez découvrir ce magnifique ensemble immobilier en pierre, édifié en 1798, comprenant une longère composée de 4 chambres et une belle grange d’environ 155 m2 au sol.
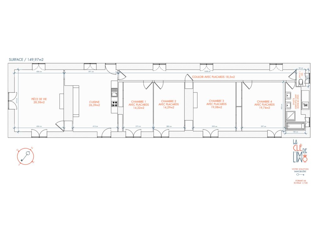
D’une superficie habitable d’environ 150 m2, la maison se compose de plain-pied d’une cuisine avec son imposante cheminée et un poêle à bois (26,3 m2), d’une pièce à vivre très lumineuse avec ses 2 portes-fenêtres donnant sur une très belle terrasse en pierre (28,4 m2), de 4 vastes chambres toutes équipées de placards de rangements (14,2 – 14,3 – 19,2 et 19,7 m2), d’une salle de bains avec buanderie (8 m2) et d’un WC séparé (1,3 m2).
On retrouve également une magnifique grange dans un bon état général qui pourrait permettre la création de chambres d’hôtes ou de gîtes. Elle séduira également des collectionneurs ou des bricoleurs.
Les deux bâtiments, en position dominante, sont édifiés sur une très belle parcelle de terrain de 4800 m2 sans aucun vis-à-vis.
Assainissement individuel à réhabiliter.
Faible taxe foncière de 826 €.
Plans et vidéos
Plans 2D de la maison :

Visite virtuelle de la maison :
Diagnostics
Consommations énergétiques
* Emissions de CO²
Localiser
Contact privilégié

Contactez nous
Vous souhaitez vendre votre bien et vous voulez faire appel à une agence qui saura en prendre soin. L’équipe de la clé de l’immo se tient à votre disposition pour vous proposer une estimation de ce dernier et réaliser des plans 2D, 3D ainsi que des visites virtuelles

















