Immeuble de charme comprenant 12 pièces
Caractéristiques
Descriptif
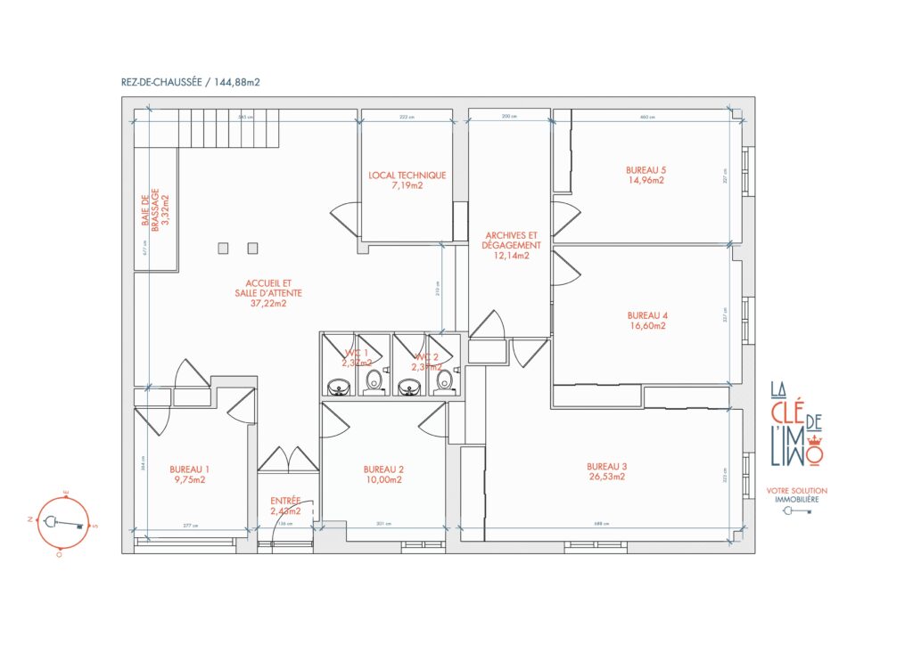
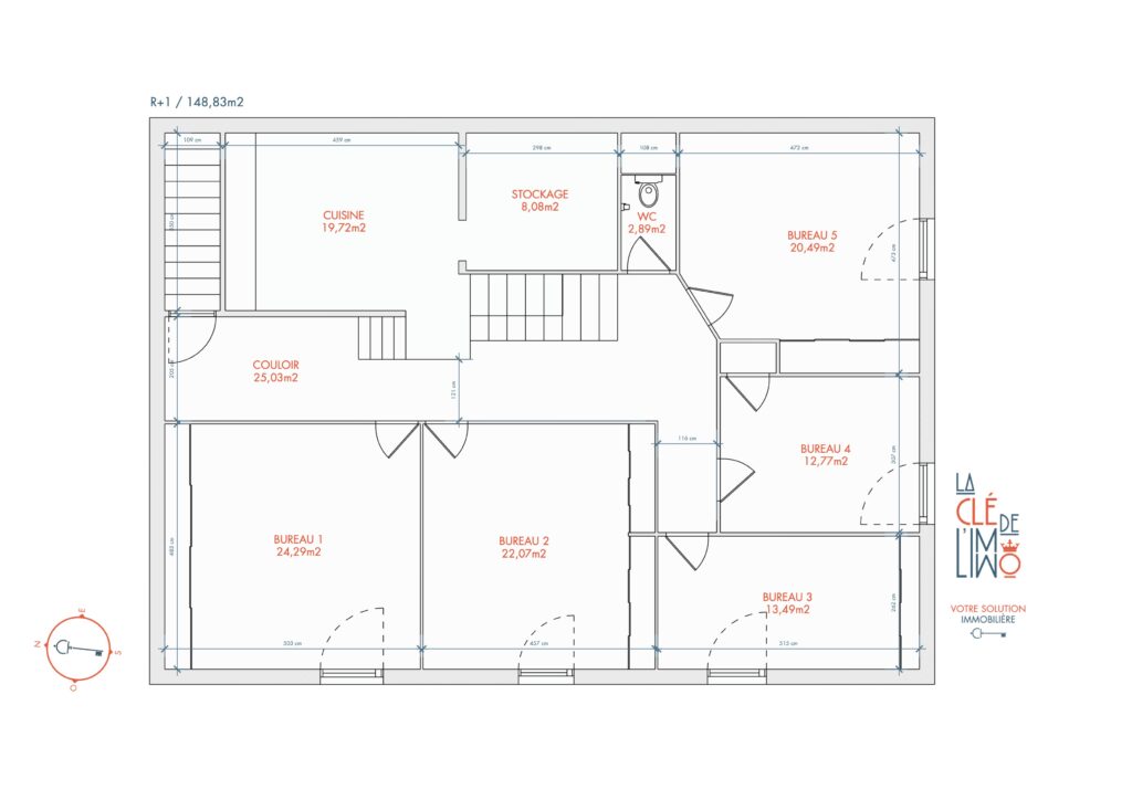
Belle situation pour cet immeuble de 340 m2 composé de 12 bureaux, idéal pour une activité professionnelle et/ou libérale. Édifié sur 3 niveaux, il comprend également un espace cuisine, une salle d’eau et plusieurs sanitaires. De nombreux rangements et espaces de stockage sont présents dans la majeure partie de l’immeuble.
Il est à noter la possibilité non-négligeable de laisser le rez-de-chaussée en activité professionnelle et d’aménager les deux niveaux supérieurs en un magnifique loft comprenant trois chambres et un grand bureau.
Vous avez un projet d’implantation professionnel sur Périgueux ? Ne tardez pas à visiter ce bien offrant de multiples possibilités.
Plans et vidéos
Plans 2D de l’immeuble :



Plans 2D de projection avec un aménagement en loft :

Diagnostics
Consommations énergétiques
* Emissions de CO²
Localiser
Contact privilégié

Contactez nous
Vous souhaitez vendre votre bien et vous voulez faire appel à une agence qui saura en prendre soin. L’équipe de la clé de l’immo se tient à votre disposition pour vous proposer une estimation de ce dernier et réaliser des plans 2D, 3D ainsi que des visites virtuelles



















