Superbe situation pour cette maison 3 chambres avec piscine
Caractéristiques
Descriptif
Vous souhaitez vivre à la campagne tout en étant aux portes de Périgueux, des centres commerciaux et de l’autoroute ? Venez découvrir cette belle maison de plain-pied de 120 m2 située dans un environnement très paisible.
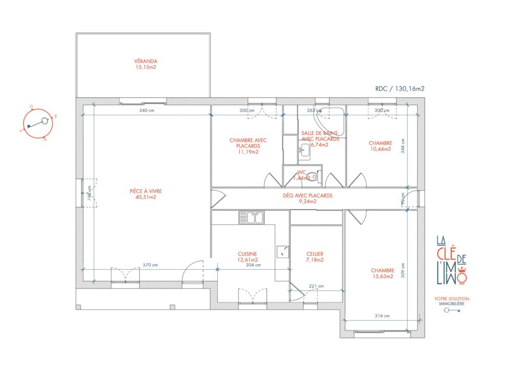
Édifiée en 1998 sur un terrain plat, clôturé et arboré de 2 473 m2 vous y retrouverez une grande pièce de vie (40 m2) avec une cuisine ouverte entièrement équipée (12 m2), une véranda (15 m2) et un cellier/buanderie (7 m2). La partie nuit dessert 3 belles chambres (11 – 11 et 17 m2) avec placards et dressing, une salle de bains avec douche et baignoire et un WC séparé.
A l’extérieur vous profiterez de 2 terrasses, dont 1 couverte, et d’une piscine (8×4 m à fond plat) sans le moindre vis-à-vis.
La maison est très bien isolée avec des menuiseries PVC double vitrage, chauffée avec une pompe à chaleur et un poêle à bois.
Un grand garage de 56 m2 – permettant de garer deux voitures – complète cet ensemble rare…
Faible taxe foncière de 1 404 €.
Plans et vidéos
Plan 2D de la maison :

Diagnostics
Consommations énergétiques
* Emissions de CO²
Localiser
Contact privilégié

Contactez nous
Vous souhaitez vendre votre bien et vous voulez faire appel à une agence qui saura en prendre soin. L’équipe de la clé de l’immo se tient à votre disposition pour vous proposer une estimation de ce dernier et réaliser des plans 2D, 3D ainsi que des visites virtuelles



















